0120-851-040
検索アイコン
4,499 万円

■新規リノベーション済ペット可物件
■小中学校徒歩10分圏内と安心の立地

□□ Report from Toho House Oji □□

【TOHO HOUSE CLUBでのアフターサービス】
ご購入後の「おウチ」と「お金」のご相談窓口をご用意しております!
・金利上昇時のリスクヘッジ、借換え相談、繰上返済のタイミング、各種保険の見直し・・・etc
・おウチの設備保証や定期点検、駆け付けサービス・・・etc
購入前のタイミングは勿論、購入後のご不安につきましてもご相談可能です!

まずはお気軽に現地をご覧下さいませ。物件の詳細について、ご見学希望のお客様は下記番号までお気軽にご連絡下さい。
お問い合わせ専用フリーダイヤル : 0120-891-040

中古マンション 加賀マンション 板橋区加賀1丁目
TEL:
0120-851-040 0120-851-040
[無料]
物件番号:uehara225

ここに住むからこそ意味がある。すべての(始まり)をここから迎えます。

作り手の「気持ちの良いリビングでお過ごししていただきたい」という思いを感じさせます。

インティメイトなくつろぎを愉しむリビングルームはひそやかな憩いの場となります。リビングとダイニング、2つの空間機能を活かし、巧みに使い分ける発想が、ライフスタイルに新しいゆとりをもたらします。

木のぬくもりが感じられるナチュラルな雰囲気に仕上がった室内。ふんだんに陽射しが注ぐ明るいリビングには家族が自然と集い笑顔に。

キッチンの収納は、デッドスペースになりやすい箇所を有効活用できる、スライド式収納を採用しました。

対面キッチンを採用。キッチンから立ち込める香りが今日の料理を期待させます。

心地よいバスタイムを演出する浴室はゆとりあるサイズを採用。

身だしなみのチェックがしやすい大きな鏡、下には収納がたっぷり。スッキリとした空間を演出いたします。

清潔な空間であって頂けますように、目に留まるだけではなく、汚れをふき取り易いフロアと壁紙をチョイス。

白を基調とした室内は、明るい住空間を造り出すだけでなく、清潔感をもたらしてくれます。

家族とのコミュニケーションを促進する拘り設計。快適な居住空間を演出し、都市型生活をより潤いある時間へ代えてくれます。

笑顔が溢れ、会話が弾む豊かな時を過ごすことができる空間でお住まいになった幸せをかみしめてください。

居住していく中でオーナー様だけの【マイホーム】に創り上げて下さい。

暖色系の照明は、心理的にも落ち着きを得られやすいそうです。

清潔感あるホワイトの壁紙と温もり溢れるカラーの床材が見事に調和した本邸宅。毎日の生活を少しでも快適に過ごして頂ける様、飽きの来ない雰囲気が大切です。

収納量の多いシューズクロークも健やかな暮らしを楽しめそう。

夜空の煌めきや、室内への通風や採光へ一役。ガーデニング等も充分に楽しめる広さを確保しております。

新居に住まう事で手に入れるものは、きっと日常にとっても貴重な存在となるはずです。

清潔感溢れる玄関がお出迎えする本邸宅の物語は、ここからは始まる日常を期待させます。この場所には「希望」と「優越」で包み込んでくれる「特別」な空間があります。

ただ「住まう」だけではございません。気持ち良く住んで欲しい気持ちをこめて…。お住まいの事、住まう街の事、お金の事、何でもご相談下さいませ。

新板橋駅まで約800m

十条駅まで約935m

板橋区役所前駅まで約1535m

ライフ板橋店まで約832m

まいばすけっと板橋宿店まで約962m

まいばすけっと新板橋駅南店まで約1096m

加賀第二公園まで約211m

加賀一丁目公園まで約212m

板谷公園まで約384m

REPORT

上原 智
ウエハラ トモ
TEL: 0120-851-040 0120-851-040 [通話料無料]
物件番号:uehara225
物件名
加賀マンション
所在地
東京都板橋区加賀1丁目
交通
(1)都営三田線「新板橋」駅徒歩10分
(2)埼京線「十条」駅徒歩12分
(3)都営三田線「板橋区役所前」駅徒歩15分
その他交通
-
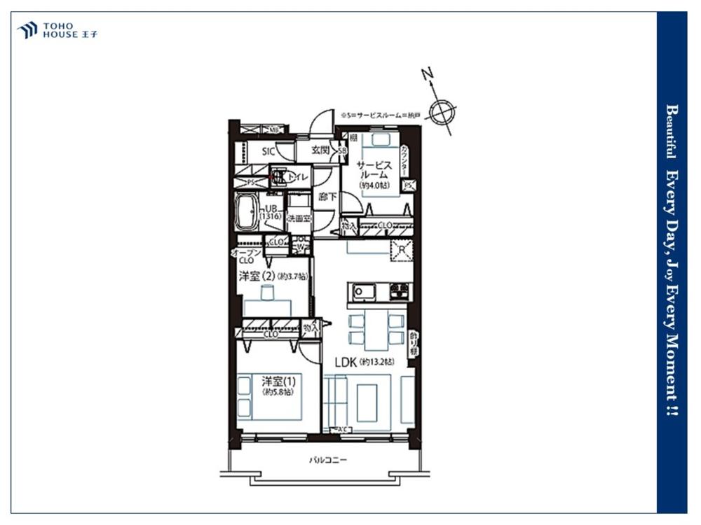
間取り
2SLDK
築年月
1976年09月
専有面積
57.66m²(登記)
所在階/階数
3階/地上7階
設備
給湯/エアコン/照明/室内洗濯機置場/フローリング/収納/エレベータ/システムキッチン/シャンプードレッサー/バルコニー/対面キッチン/追焚給湯/温水洗浄便座/暖房便座/浴室換気乾燥機/クローゼット/ガスキッチン/ペット/リノベーション/リフォーム済み/自転車置き場/食器洗浄乾燥機/洗濯機置場/浄水器/オートバス/日当り良好/閑静な住宅街/バス・トイレ別/洗面台独立/5年以内に水回り設備交換/家具付/脱衣所あり/公園800m以内/小学校まで1km以内/全居室フローリング/可動間仕切り/南西向き/通風良好/全居室収納/納戸/フローリング張替/内装リフォーム/ワイドバルコニー/南面バルコニー/眺望良好/整備された歩道/小学校徒歩10分以内/中学校徒歩10分以内/スーパー徒歩10分以内/瑕疵保険(不動産会社独自)による保証/緑豊かな住宅地/平坦地/前面棟無/都市近郊/市街地が近い/駅まで平坦/2沿線以上利用可/即入居可/ペット相談/シューズインクローク
建物構造
RC
土地権利
所有権
バルコニー面積/向き
6.89m2/南西
総戸数
25戸
販売戸数
-
駐車場(空数)
空無
駐車場料金(月額)
-
敷地面積
-
建築確認番号
-
引渡し時期
即時
管理費
12,371円
修繕積立金
18,556円
現況
空家
国土法届出
不要
管理形態
自主管理/-
間取り詳細
南西向き
備考
学区
板橋第四小学校/金沢小学校
板橋第五中学校/加賀中学校
※学区につきまして、学校名が複数表示される場合がございますが、丁目以下の住所により異なるため、詳しい内容は該当の行政機関等にお問い合わせください。
取引態様
仲介
管理番号
uehara225
情報更新日
2026-04-30
次回更新予定日
随時