0120-851-040
受付時間 9:00-21:00
〒114-0022 東京都北区
王子本町一丁目17-6
TEL:03-5948-9760
FAX:03-5948-6707
□□ Report from Toho House Oji □□
【TOHO HOUSE CLUBでのアフターサービス】
ご購入後の「おウチ」と「お金」のご相談窓口をご用意しております!
・金利上昇時のリスクヘッジ、借換え相談、繰上返済のタイミング、各種保険の見直し・・・etc
・おウチの設備保証や定期点検、駆け付けサービス・・・etc
購入前のタイミングは勿論、購入後のご不安につきましてもご相談可能です!
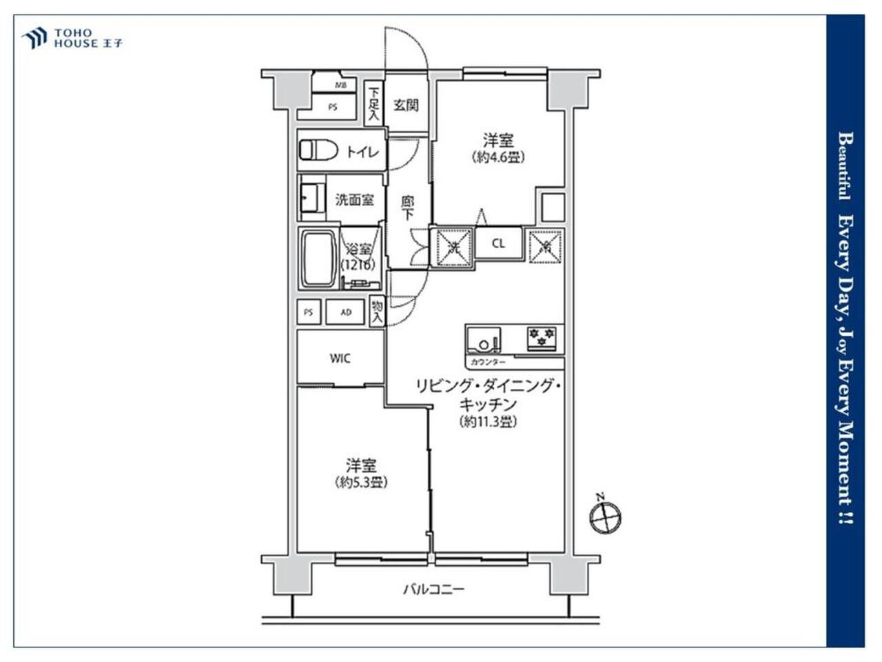
まずはお気軽に現地をご覧下さいませ。物件の詳細について、ご見学希望のお客様は下記番号までお気軽にご連絡下さい。
お問い合わせ専用フリーダイヤル :0120-104-570
