0120-851-040
検索アイコン
4,580 万円

【つくばエクスプレス「六町」駅利用】進化を続ける街で、ゆとりある新生活を。

□□ Report from Toho House Oji □□

【TOHO HOUSE CLUBでのアフターサービス】
ご購入後の「おウチ」と「お金」のご相談窓口をご用意しております!
・金利上昇時のリスクヘッジ、借換え相談、繰上返済のタイミング、各種保険の見直し・・・etc
・おウチの設備保証や定期点検、駆け付けサービス・・・etc
購入前のタイミングは勿論、購入後のご不安につきましてもご相談可能です!

まずはお気軽に現地をご覧下さいませ。物件の詳細について、ご見学希望のお客様は下記番号までお気軽にご連絡下さい。
お問い合わせ専用フリーダイヤル : 0120-89-1040

新築戸建て 足立区南花畑4丁目 戸建て 足立区南花畑4丁目
TEL:
0120-851-040 0120-851-040
[無料]
物件番号:koshibae089

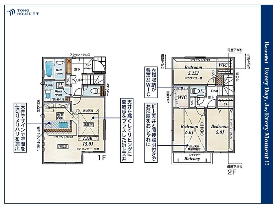
2号棟間取り図

「2号棟」インテリアショップで見掛けた「あの家具」も置ける、ゆったりとした空間。時に広さが上質な寛ぎの時間になる事も。

「2号棟」降り注ぐ陽光をいっぱいに浴びて、ライトと共にLDK全体を明るく・開放感のある空間にしました。多くの時間を過ごす住まいだからこそ、いつも快適な場所であるように心掛けています。

「2号棟」「※生成AIによるイメージです。家具・小物は販売価格に含まれません。」資料には掲載していない情報が現地にはたくさんあります。 是非一度、現地をご確認ください。

「2号棟」ご家族みんなで調理ができる位のスペースを実現したキッチン空間となっております。みんなで作った料理を召し上がりながらの会話は、どのような物になるのでしょうか。

「2号棟」ナチュラルカラーで統一されたキッチンは、ご家族を見守る事の出来る生活導線上に配置。皆が集まるLDKを見ながら振るう料理は、愛情と温もりが詰まった素敵なモノになりそうですね。

「2号棟」DKや洗面所とは違う場所に設置されたトイレ。中は比較的ゆとりのある大きさを確保しておりますので、ゆったりとお使い頂けます。

「2号棟」充分な広さが確保されたバルコニー。日当たりのよい住宅エリアですので、多くの陽光が降り注ぎ、室内には陽だまりを生み出してくれます。

「2号棟」一日の疲れを癒してくれる場所ですので、空間自体も落ち着きのあるカラーで纏めて、全体的にゆったりとした雰囲気を演出しております。お子様と一緒に入浴頂ける十分な広さもございます。

「2号棟」お客様の求める本当の“住み心地とは何なのか。そのための一手間一工夫を惜しみません。街並みや周辺の環境に呼応しながら、美しく、そして毎日の暮らしを考慮した機能性の高い住まい。

「2号棟」収納がとにかく多いこちらの間取り。スーツやコートにジャケット、季節物の家電といった使わないものも全て収納へしまっておけそうですね。

「2号棟」物件の陽当りや通風・仕様設備やお部屋の大きさの比較、近隣・周辺環境や街並みなど、資料には掲載していない情報が現地にはたくさんあります。 是非一度、現地をご確認ください。

子「2号棟」育て、家族のふれあい…ラクに楽しく自然にできる工夫がいっぱい。日常的な子育てや、家事動線にちゃんと配慮した、子どもの様子が見やすいプラン設計。

「2号棟」白を基調とした室内は、明るい住空間を造り出すだけでなく、清潔感をもたらしてくれます。

「2号棟」住まう方でカスタマイズしていただけるシンプルなデザインの内装。ご自身で素敵な空間を創り上げられます。

穏やかな風と陽光を導き、プライバシーに配慮された設計プランを採用し、居住性を一段と心地よいものにしています。周辺環境とのコラボレーションにより明るく開放的な空間を演出しております。

「2号棟」居室にはクローゼットを完備し、自由度の高い家具の配置が叶うシンプルな空間です。お子様の成長と共に必要になる子供部屋にぴったりの間取りですね。

「2号棟」大きく見やすい三面鏡で清潔感ある洗面台。収納も多く、コスメ等もスッキリと仕舞えます。キッチンに隣接した位置関係ですので、家事動線もよく、ご家族のコミュニケーションが生まれ易い配置となっていま

「2号棟」玄関はお客様をお出迎えする一番最初の場所、帰ってくる時に入る最初の場所。そんな場所だからこそ、より良い空間に…。

「2号棟」陽射しとともに、少しづつ装いを変える街の景観から、星空が地上に映りこむかのような夜景のきらめきまで、この街ならではの美しい風景の物語が室内に展開します。手を伸ばせば、ふれることができそうな眺

つくばエクスプレス六町駅まで約1687m

竹ノ塚駅まで約2820m

谷塚駅まで約2997m

ライフ六町駅前店まで約1566m

下沼公園まで約95m

南花畑公園まで約592m

花畑前通公園まで約761m

樫ノ木公園まで約763m

道海公園まで約788m

REPORT

小椎八重 悦治
コシバエ ヨシハル
TEL: 0120-851-040 0120-851-040 [通話料無料]
物件番号:koshibae089
物件名
足立区南花畑4丁目 戸建て
所在地
東京都足立区南花畑4丁目
交通
(1)つくばエクスプレス「六町」駅徒歩24分
(2)東武伊勢崎・大師線「竹ノ塚」駅徒歩39分
(3)東武伊勢崎・大師線「谷塚」駅徒歩40分
その他交通
-
間取り
3LDK
築年月
2026年03月
延床面積
77.34m²(実測)
土地面積
82.27m²(実測)
設備
インターホンTV/フローリング/収納/システムキッチン/シャンプードレッサー/インターネット接続/対面キッチン/追焚給湯/温水洗浄便座/暖房便座/浴室換気乾燥機/床下収納/床暖房/クローゼット/ウォークインクローゼット/食器洗浄乾燥機/トイレ2ヶ所/オートバス/バス1坪以上/日当り良好/閑静な住宅街/コンロ2口/コンロ3口/バス・トイレ別/洗面台独立/セキュリティ充実/シューズボックス/節水型トイレ/IT重説対応物件/全居室フローリング/通風良好/全居室収納/高機能トイレ/眺望良好/ビルドガレージ/整備された歩道/テニスコートが近い/小学校徒歩10分以内/スーパー徒歩10分以内/緑豊かな住宅地/平坦地/都市近郊/市街地が近い/駅まで平坦/総合病院10分以内
建物構造
木造
土地権利
所有権
私道面積
引渡し時期
相談
階建
地上2階
用途地域
第一種中高層住居専用地域
地目
宅地
セットバック
不要
現況
未完成
国土法届出
不要
販売戸数
-
建築確認番号
第R07SHC121587号
接道
-
建ぺい率/容積率
60%/200%
間取り詳細
-
備考
景観法、高度地区、準防火地域、高さ最高限度有、日影制限有
学区
花保小学校/花畑第一小学校/花畑小学校
花保中学校/花畑中学校
※学区につきまして、学校名が複数表示される場合がございますが、丁目以下の住所により異なるため、詳しい内容は該当の行政機関等にお問い合わせください。
取引態様
仲介
管理番号
koshibae089
情報更新日
2026-04-24
次回更新予定日
随時