0120-851-040
検索アイコン
8,499 万円

3駅徒歩圏内。閑静な住宅街に佇む「グローベル ザ・リミテッド四ツ谷」。

□□ Report from Toho House Oji □□

【TOHO HOUSE CLUBでのアフターサービス】
ご購入後の「おウチ」と「お金」のご相談窓口をご用意しております!
・金利上昇時のリスクヘッジ、借換え相談、繰上返済のタイミング、各種保険の見直し・・・etc
・おウチの設備保証や定期点検、駆け付けサービス・・・etc
購入前のタイミングは勿論、購入後のご不安につきましてもご相談可能です!

まずはお気軽に現地をご覧下さいませ。物件の詳細について、ご見学希望のお客様は下記番号までお気軽にご連絡下さい。
お問い合わせ専用フリーダイヤル : 0120-89-1040

中古マンション グローベルザ・リミテッド四ツ谷 新宿区四谷三栄町
TEL:
0120-851-040 0120-851-040
[無料]
物件番号:kawamata081

通風・採光にも優れ、心地よい光と風があふれています。 贅沢といえるほどの豊かな居住性と、プライドを満たすクオリティが見事に調和した住空間。

降り注ぐ陽光をいっぱいに浴びて、ライトと共にLDK全体を明るく・開放感のある空間にしました。多くの時間を過ごす住まいだからこそ、いつも快適な場所であるように心掛けています。

「LDKは家族だんらんをデザイン」。広いLDKでは家族が集まり一緒の時間がすごせる工夫がされております。何気ない一日の当たり前のひとコマがいつか一生の宝物になります。

ナチュラルカラーで統一されたキッチンは、ご家族を見守る事の出来る生活導線上に配置。皆が集まるLDKを見ながら振るう料理は、愛情と温もりが詰まった素敵なモノになりそうですね。

手元の収納から、足元の収納までが全てスライド式で、奥のスペースまで有効に活用できます。奥まで上から見渡せるので、たまにしか使わない調理器具もサッと取出せます。

一日の疲れを癒してくれる場所ですので、空間自体も落ち着きのあるカラーで纏めて、全体的にゆったりとした雰囲気を演出しております。お子様と一緒に入浴頂ける十分な広さもございます。

いつまでも清潔な空間であって頂けますように、目に留まるだけではなく、汚れをふき取り易いフロアと壁紙をチョイス致しました。洗浄便座になっておりますので、とても清潔にご使用いただけます。

シンプルだからこそ使いやすい。スタンダードなデザインの洗面ボウルは清潔感あるオフホワイトです。

家具の配置のし易い室内です。趣味の部屋としても充分な広さを確保しております。

子育て、家族のふれあい…ラクに楽しく自然にできる工夫がいっぱい。日常的な子育てや、家事動線にちゃんと配慮した、子どもの様子が見やすいプラン設計。

白を基調とした室内は、明るい住空間を造り出すだけでなく、清潔感をもたらしてくれます。

お子様の心と身体を見守る子供部屋として、思春期のプライバシーを重視したり、成長に合わせて机やベットを自由にレイアウトできるようにと、小さな自立心を育むお部屋作りを見越してご覧下さい。

奥行きのあるクローゼットを採用。衣装ケースや、掃除機といった電化製品まで多くの物を収納できるようなつくりになっております。是非一度、ご自身の目でお確かめ下さい。

充分な広さが確保されたバルコニー。日当たりのよい住宅エリアですので、多くの陽光が降り注ぎ、室内には陽だまりを生み出してくれます。

手を伸ばせば、ふれることが出来そうな環境が、そのままインテリアになったような印象です。その豊かな眺望にふさわしい空間には、通風・採光にも優れ、心地よい光と風があふれています。

上質感漂う玄関と廊下。居住者の帰り、訪れる方を優しく迎える・安らぎに満ちた生活空間を予感させる。健やかな暮らしを楽しめそう。

エントランスから始まる、広さが奏でる優雅な雰囲気。ホテルライクな印象は、ゆとりの敷地面積に由来する、ワンフロアの広さがその理由です。

暮らしのステージを彩り、心のやすらぎと満足感を与えてくれます。通風と採光を考慮した設計は地域の鼓動を感じ、お寛ぎ頂くことが可能。採光や夜空の輝きが癒しの時間を演出。

住まい探しは街探し。みんなが街探しのポイントにしているのは何。 第1位は過半数が支持した納得の 「交通の利便性」。続いて3割以上の人が「住環境」と「公園、緑地の充実」です。

昨今主流のスリムタイプのレンジフード。そのスタイリッシュな見た目から、インテリアとしても高い人気がある型です。また、スリム型の大きなメリットとして、掃除のしやすさがあります。

四谷三丁目駅まで約372m

四ツ谷駅まで約606m

曙橋駅まで約675m

まいばすけっと四谷4丁目店まで約558m

荒木公園まで約197m

あらき児童遊園まで約337m

よつや児童遊園まで約391m

左門公園まで約490m

須賀公園まで約492m

REPORT

川俣 大樹
カワマタ ダイキ
TEL: 0120-851-040 0120-851-040 [通話料無料]
物件番号:kawamata081
物件名
グローベルザ・リミテッド四ツ谷
所在地
東京都新宿区四谷三栄町
交通
(1)東京メトロ丸ノ内線「四谷三丁目」駅徒歩5分
(2)東京メトロ丸ノ内線「四ツ谷」駅徒歩8分
(3)都営新宿線「曙橋」駅徒歩7分
その他交通
-
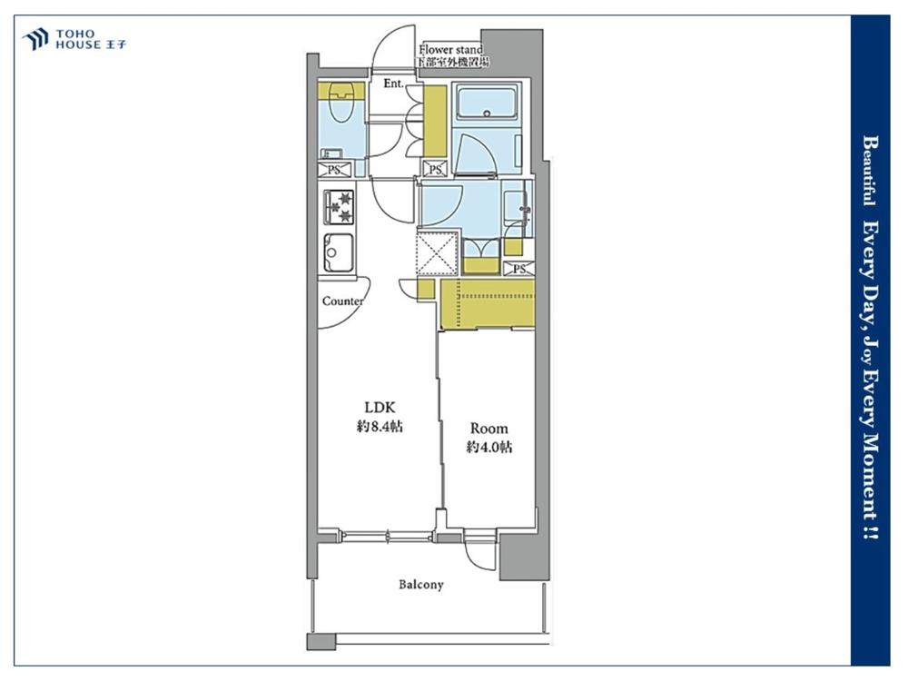
間取り
1LDK
築年月
2012年11月
専有面積
32.23m²(壁芯)
所在階/階数
5階/地上9階
設備
インターホンTV/フローリング/収納/エレベータ/システムキッチン/シャンプードレッサー/宅配ボックス/温水洗浄便座/浴室換気乾燥機/バイク置き場/ペット/自転車置き場/オートバス/日当り良好/閑静な住宅街/セキュリティ充実/全居室フローリング/通風良好/全居室収納/高機能トイレ/眺望良好/整備された歩道/テニスコートが近い/小学校徒歩10分以内/スーパー徒歩10分以内/高層階/共有施設充実/緑豊かな住宅地/平坦地/都市近郊/市街地が近い/駅まで平坦/2沿線以上利用可/即入居可/ペット相談/総合病院10分以内
建物構造
RC
土地権利
所有権
バルコニー面積/向き
7m2/北西
総戸数
31戸
販売戸数
-
駐車場(空数)
駐車場料金(月額)
-
敷地面積
-
建築確認番号
-
引渡し時期
即時
管理費
20,620円
修繕積立金
12,150円
現況
空家
国土法届出
不要
管理形態
全部委託/巡回方式
間取り詳細
北西向き
備考
学区
取引態様
仲介
管理番号
kawamata081
情報更新日
2026-04-23
次回更新予定日
随時