0120-851-040
検索アイコン
15,000 万円

~~店舗付き中古戸建!氷川台駅より徒歩4分◎~~
■地下1階車庫付き

□□ Report from Toho House Oji □□

【TOHO HOUSE CLUBでのアフターサービス】
ご購入後の「おウチ」と「お金」のご相談窓口をご用意しております!
・金利上昇時のリスクヘッジ、借換え相談、繰上返済のタイミング、各種保険の見直し・・・etc
・おウチの設備保証や定期点検、駆け付けサービス・・・etc
購入前のタイミングは勿論、購入後のご不安につきましてもご相談可能です!

まずはお気軽に現地をご覧下さいませ。物件の詳細について、ご見学希望のお客様は下記番号までお気軽にご連絡下さい。
お問い合わせ専用フリーダイヤル : 0120-104-570

中古戸建て 練馬区氷川台4丁目 戸建て 練馬区氷川台4丁目
TEL:
0120-851-040 0120-851-040
[無料]
物件番号:ikegami467

陽光に愛され、環境に恵まれ、家族に包まれた邸宅は、どんなに月日が経っても色褪せる事なく「オンリーワン」に輝き続けます。

街に溶け合う美しい景観を生みだしているにも関わらず、採光や風通しを考えて設計された間取り。優雅なひと時をお過ごしいただける筈です。

物件の陽当りや通風・仕様設備やお部屋の大きさの比較、近隣・周辺環境や街並みなど、資料には掲載していない情報が現地にはたくさんあります。 是非一度、現地をご確認ください。

機能、品質、安全性など、建築・環境に求められる基本的な要件はもちろん、暮らしへの提案をも含んだ全体的な質の高さを感じて頂ける筈です。是非一度、現地をご覧になってみてください。

氷川台駅まで約413m

平和台駅まで約1166m

新桜台駅まで約1431m

まいばすけっと氷川台駅北店まで約228m

コモディイイダ氷川台店まで約318m

サミットストア氷川台駅前店まで約508m

氷川台三丁目ちびっこ公園まで約469m

早宮史跡公園まで約486m

氷川台さくら公園まで約554m

REPORT

池上 賢一
イケガミ ケンイチ
TEL: 0120-851-040 0120-851-040 [通話料無料]
物件番号:ikegami467
物件名
練馬区氷川台4丁目 戸建て
所在地
東京都練馬区氷川台4丁目
交通
(1)東京メトロ有楽町線「氷川台」駅徒歩4分
(2)西武有楽町「新桜台」駅徒歩19分
(3)西武池袋線「桜台」駅徒歩23分
その他交通
-
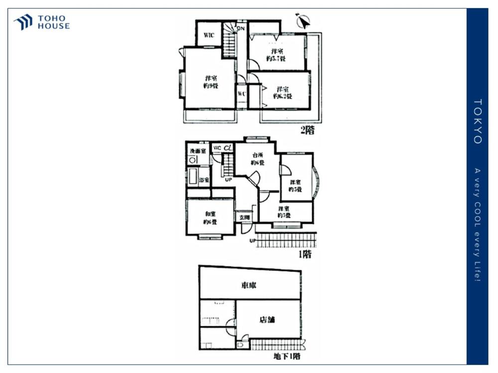
間取り
6DK
築年月
2002年07月
延床面積
195.59m²(登記)
土地面積
100m²(登記)
設備
都市ガス/公営水道/下水排水/給湯/インターホンTV/収納/システムキッチン/シャンプードレッサー/追焚給湯/温水洗浄便座/浴室換気乾燥機/クローゼット/ウォークインクローゼット/トイレ2ヶ所/オートバス/コンロ3口/バス・トイレ別/シューズボックス/和室/浴室に窓/3面採光/東南向き/全居室収納/ワイドバルコニー/2面以上バルコニー/高機能トイレ/整備された歩道/テニスコートが近い/高台に立地/整形地/2沿線以上利用可
建物構造
木造
土地権利
所有権
私道面積
引渡し時期
相談
階建
地上2階・地下1階
用途地域
第一種住居地域
地目
宅地
セットバック
不要
現況
空家
国土法届出
不要
販売戸数
-
建築確認番号
-
接道
一方 南東側幅6m
建ぺい率/容積率
60%/200%
間取り詳細
南東向き
DK6帖・和室6帖・洋室5帖×2・DK9帖・洋室6.2帖・洋室5.7帖
備考
建物面積に地下室79.77㎡含む、高度地区、準防火地域、市街化区域、準防火地域、第二種高度地区、計画道路有、土地の一部が(約0.2㎡)が都市計画道路の区域内(放射第36号線・事業中)建ぺい率オーバーしており監督官庁による是定命令を受ける可能性があります。
学区
仲町小学校/開進第一小学校
開進第四中学校/開進第一中学校
※学区につきまして、学校名が複数表示される場合がございますが、丁目以下の住所により異なるため、詳しい内容は該当の行政機関等にお問い合わせください。
取引態様
仲介
管理番号
ikegami467
情報更新日
2026-04-23
次回更新予定日
随時