0120-851-040
検索アイコン
2,900 万円

■環境良好!小中学校が近く、お買い物も便利
■リビング約19帖、陽当り良好

□□ Report from Toho House Oji □□

【TOHO HOUSE CLUBでのアフターサービス】
ご購入後の「おウチ」と「お金」のご相談窓口をご用意しております!
・金利上昇時のリスクヘッジ、借換え相談、繰上返済のタイミング、各種保険の見直し・・・etc
・おウチの設備保証や定期点検、駆け付けサービス・・・etc
購入前のタイミングは勿論、購入後のご不安につきましてもご相談可能です!

まずはお気軽に現地をご覧下さいませ。物件の詳細について、ご見学希望のお客様は下記番号までお気軽にご連絡下さい。
お問い合わせ専用フリーダイヤル : 0120-661-040

中古マンション ライオンズマンション上石神井 練馬区上石神井3丁目
TEL:
0120-851-040 0120-851-040
[無料]
物件番号:hayashida206930

プライバシーに配慮された設計プランを採用し、居住性を一段と心地よいものにしています。

一日の中で多くの時間を過すことになるリビングダイニングだからこそ、いつも穏やかな空間であることが必然。爽やかな通風と採光を存分に感じる事が出来る空間です。

インティメイトなくつろぎを愉しむリビングルームはひそやかな憩いの場となります。リビングとダイニング、2つの空間機能を活かし、巧みに使い分ける発想が、ライフスタイルに新しいゆとりをもたらします。

家族とのコミュニケーションを促進する拘り設計。快適な居住空間を演出し、都市型生活をより潤いある時間へ代えてくれます。

キッチンの収納は、デッドスペースになりやすい箇所を有効活用できる、スライド式収納を採用しました。

一日の疲れを癒してくれる場所だからこそ、一番落ち着く場所で有り続けます。

平日の朝であっても、落ち着きとくつろぎを感じられる。時間に余裕とゆとりを持たせます。

清潔な空間であって頂けますように、目に留まるだけではなく、汚れをふき取り易いフロアと壁紙をチョイス。

暖色系の照明は、心理的にも落ち着きを得られやすいそうです。

笑顔が溢れ、会話が弾む豊かな時を過ごすことができる空間でお住まいになった幸せをかみしめてください。

暖かい陽ざしが差込むバルコニーは、晴れた日には、洗濯物が良く乾きます。また、風通しも良好です。

星空が地上に映りこむかのような夜景のきらめきまで、この街ならではの美しい風景の物語が室内に展開。

和室があることで落ち着きと癒しの空間が生まれます。日本で生まれた素晴らしい文化のあるお住まい。

一日の疲れを癒やしてくれる主寝室。時を忘れて過ごす場所として過ごせるお部屋。

白を基調とした室内は、明るい住空間を造り出すだけでなく、清潔感をもたらしてくれます。

少しでも空いているスペースを収納にすることで、無駄のない空間を演出しております。

清潔感が溢れ、訪れる者すべてを「安らぎ」と「充実」で包み込みます。

時間の経過と共に味わいが出る素敵なリゾート時間を楽しんでください。

その豊かな眺望にふさわしい空間には、通風・採光にも優れ、心地よい光と風があふれています。

忙しく過ぎゆく日常を置き去るほど、ゆったりした時間が流れる住環境です。「快適」は「家」と「街」と「環境」が調和した時に訪れるのだと改めて感じさせてくれます。

上石神井駅まで約1200m

上井草駅まで約1200m

石神井公園駅まで約1490m

いなげや下石神井店まで約708m

ライフ石神井台店まで約1103m

アコレ 石神井5丁目店まで約1157m

さくらの辻公園まで約174m

上久保児童遊園まで約649m

上石神井東公園まで約959m

REPORT

林田 大志
ハヤシダ ダイシ
TEL: 0120-851-040 0120-851-040 [通話料無料]
物件番号:hayashida206930
物件名
ライオンズマンション上石神井
所在地
東京都練馬区上石神井3丁目
交通
(1)西武新宿線「上石神井」駅徒歩15分
(2)西武新宿線「上井草」駅徒歩15分
(3)西武池袋線「石神井公園」駅徒歩21分
その他交通
-
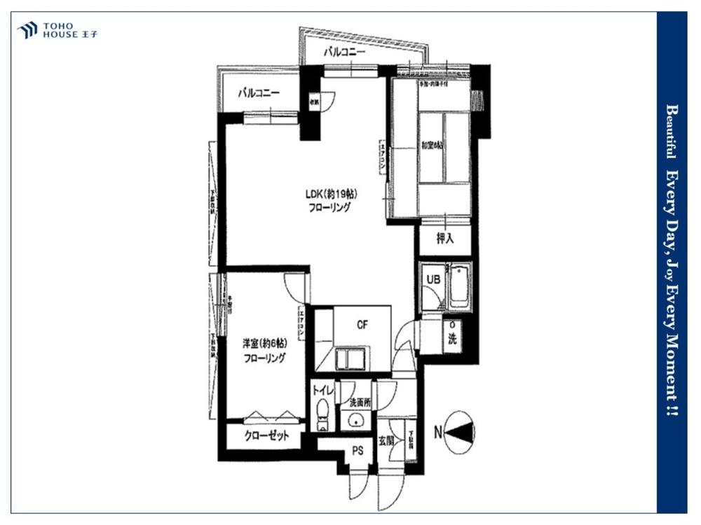
間取り
2LDK
築年月
1983年07月
専有面積
64.82m²(壁芯)
所在階/階数
4階/地上5階・地下1階
設備
給湯/フローリング/収納/エレベータ/システムキッチン/シャンプードレッサー/追焚給湯/温水洗浄便座/クローゼット/バリアフリー/角部屋/自転車置き場/オートバス/日当り良好/閑静な住宅街/バス・トイレ別/セキュリティ充実/脱衣所あり/シューズボックス/公園800m以内/リビングダイニング15畳以上/小学校まで1km以内/2面採光/可動間仕切り/LDK18畳以上/和室/通風良好/全居室収納/眺望良好/周辺交通量が少なめ/整備された歩道/テニスコートが近い/小学校徒歩10分以内/中学校徒歩10分以内/コンビニ徒歩5分以内/スーパー徒歩10分以内/共有施設充実/緑豊かな住宅地/平坦地/都市近郊/市街地が近い/24時間ゴミ出し可/総合病院10分以内
建物構造
RC
土地権利
所有権
バルコニー面積/向き
-東
総戸数
22戸
販売戸数
-
駐車場(空数)
-
駐車場料金(月額)
-
敷地面積
-
建築確認番号
-
引渡し時期
相談
管理費
26,190円
修繕積立金
27,740円
現況
空家
国土法届出
不要
管理形態
全部委託/通勤方式
間取り詳細
東向き
備考
学区
石神井小学校/上石神井北小学校
上石神井中学校/石神井南中学校
※学区につきまして、学校名が複数表示される場合がございますが、丁目以下の住所により異なるため、詳しい内容は該当の行政機関等にお問い合わせください。
取引態様
仲介
管理番号
hayashida206930
情報更新日
2026-04-24
次回更新予定日
随時