0120-851-040
検索アイコン
3,980 万円

~角部屋につき日当たり良好!~
■新規リノベーション
■複数路線利用可能

□□ Report from Toho House Oji □□

【TOHO HOUSE CLUBでのアフターサービス】
ご購入後の「おウチ」と「お金」のご相談窓口をご用意しております!
・金利上昇時のリスクヘッジ、借換え相談、繰上返済のタイミング、各種保険の見直し・・・etc
・おウチの設備保証や定期点検、駆け付けサービス・・・etc
購入前のタイミングは勿論、購入後のご不安につきましてもご相談可能です!

まずはお気軽に現地をご覧下さいませ。物件の詳細について、ご見学希望のお客様は下記番号までお気軽にご連絡下さい。
お問い合わせ専用フリーダイヤル : 0120-661-040

中古マンション レジェンド東日暮里 荒川区東日暮里3丁目
TEL:
0120-851-040 0120-851-040
[無料]
物件番号:hayase283

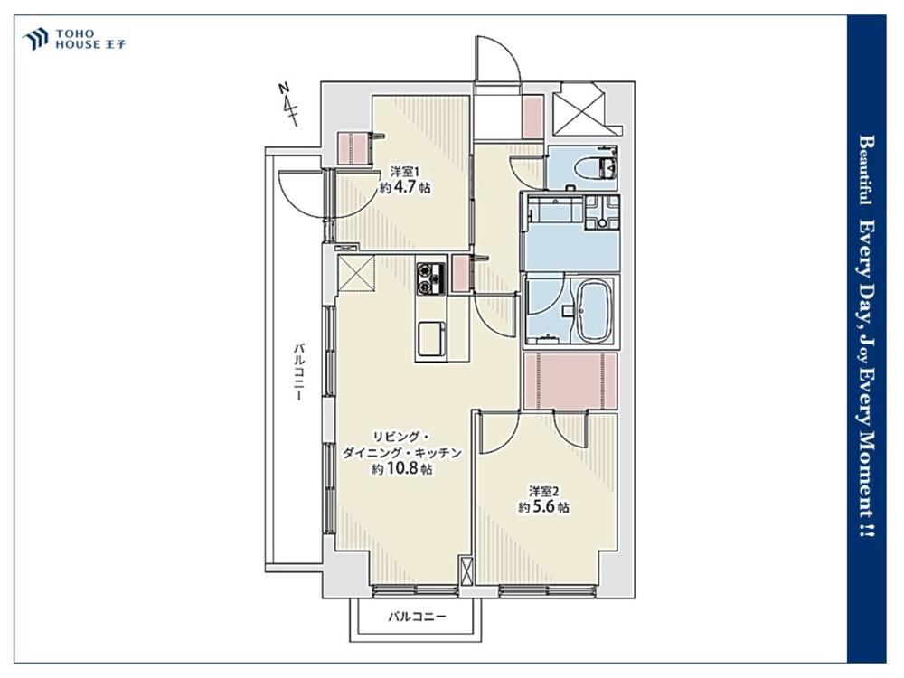
間取り

贅沢といえるほどの豊かな居住性と、プライドを満たすクオリティが見事に調和した住空間。

作り手の「気持ちの良いリビングでお過ごししていただきたい」という思いを感じさせます。

光が注がれる青い空から鮮やかに赤色にゆっくりと染まる。そんな優しい時間がここでは流れてゆく。

家は、ただ生活する場ではなく、笑顔の毎日、安らぎの日々のために、暮らしを愉しく、快適にする場所。

造りこんだ空間演出の妙が生み出す光と質のハーモニーはこの住宅のクオリティの良さを実感させてくれます。

めまぐるしく過ぎ行く日々の中でゆったりとした休息と癒しを提供してくれる居住者のプライベート空間。

暖色系の照明は、心理的にも落ち着きを得られやすいそうです。

笑顔が溢れ、会話が弾む豊かな時を過ごすことができる空間でお住まいになった幸せをかみしめてください。

一日の疲れを癒やしてくれる主寝室。時を忘れて過ごす場所として過ごせるお部屋。

生活感を感じない空間では落ち着く事はできません。絶妙な雰囲気、配色、素材感を意識してコーディネート。

そこで暮らす方々のことを考え抜き、そして造りこんだ空間は極上の癒しを提供してくれます。

お料理の上手な方が、独壇場でお料理の腕を披露するスタイルに向いているキッチンです。

平日の朝であっても、落ち着きとくつろぎを感じられる。時間に余裕とゆとりを持たせます。

心地よいバスタイムを演出する浴室はゆとりあるサイズを採用。

十分な広さと清潔感のあるカラーで纏まったおトイレ。時間に余裕とゆとりを持たせます。

清潔感が溢れ、訪れる者すべてを「安らぎ」と「充実」で包み込みます。

奥行きあるクローゼットを採用。衣装ケースや、掃除機といった物を収納できるような造りになっております。

いくつかの種類の石と、木質系の素材が創出する雰囲気は、現代的な「和」の風情を感じさせます。

閑静な住宅地に佇む「住まい」は季節・気候・時代の背景に捉われない珠玉の『空間」を実現しました。

三ノ輪駅まで約960m

新三河島駅まで約1204m

町屋駅まで約1320m

ユータカラヤ日暮里店まで約386m

東日暮里三丁目児童遊園まで約247m

峡田児童遊園まで約331m

前沼児童遊園まで約360m

東日暮里二丁目児童遊園まで約372m

荒川区立第三峡田小学校まで約389m

REPORT

早瀬 塁
ハヤセ ルイ
TEL: 0120-851-040 0120-851-040 [通話料無料]
物件番号:hayase283
物件名
レジェンド東日暮里
所在地
東京都荒川区東日暮里3丁目
交通
(1)都電荒川線「荒川区役所前」駅徒歩7分
(2)東京メトロ日比谷線「三ノ輪」駅徒歩12分
(3)JR山手線「西日暮里」駅徒歩18分
その他交通
-
間取り
2SLDK
築年月
1992年11月
専有面積
49.68m²(壁芯)
所在階/階数
2階/地上7階・地下1階
設備
給湯/エアコン/照明/インターホン/インターホンTV/フローリング/オートロック/エレベータ/システムキッチン/シャンプードレッサー/24時間セキュリティ/宅配ボックス/独立キッチン/温水洗浄便座/浴室換気乾燥機/クローゼット/バリアフリー/ウォークインクローゼット/バイク置き場/ペアガラス/24時間換気システム/ペット/角部屋/リノベーション/自転車置き場/食器洗浄乾燥機/浄水器/防犯カメラ/オートバス/日当り良好/閑静な住宅街/コンロ3口/バス・トイレ別/洗面台独立/省エネルギー対策/セキュリティ充実/食器乾燥機/全居室フローリング/南向き/通風良好/フローリング張替/内装リフォーム/ワイドバルコニー/南面バルコニー/2面以上バルコニー/高機能トイレ/眺望良好/周辺交通量が少なめ/整備された歩道/テニスコートが近い/小学校徒歩10分以内/スーパー徒歩10分以内/瑕疵保険(不動産会社独自)による保証/緑豊かな住宅地/平坦地/都市近郊/市街地が近い/駅まで平坦/2沿線以上利用可/ペット相談/24時間ゴミ出し可
建物構造
RC
土地権利
所有権
バルコニー面積/向き
8.14m2/南
総戸数
35戸
販売戸数
-
駐車場(空数)
空無
駐車場料金(月額)
-
敷地面積
-
建築確認番号
-
引渡し時期
相談
管理費
12,300円
修繕積立金
14,900円
現況
空家
国土法届出
不要
管理形態
全部委託/巡回方式
間取り詳細
南向き
備考
学区
第三峡田小学校/第三日暮里小学校
第一中学校/諏訪台中学校
※学区につきまして、学校名が複数表示される場合がございますが、丁目以下の住所により異なるため、詳しい内容は該当の行政機関等にお問い合わせください。
取引態様
仲介
管理番号
hayase283
情報更新日
2026-04-18
次回更新予定日
随時